Häfele katalog - page 1080

Lesena drsna vrata
Z ravno površino – za kuhinjske omare
9
f
h
DGH-M-INT 2013, HDE-sl, 01/13; Mere niso zavezujo
č
e. Pridržujemo si pravico do konstrukcijskih sprememb.
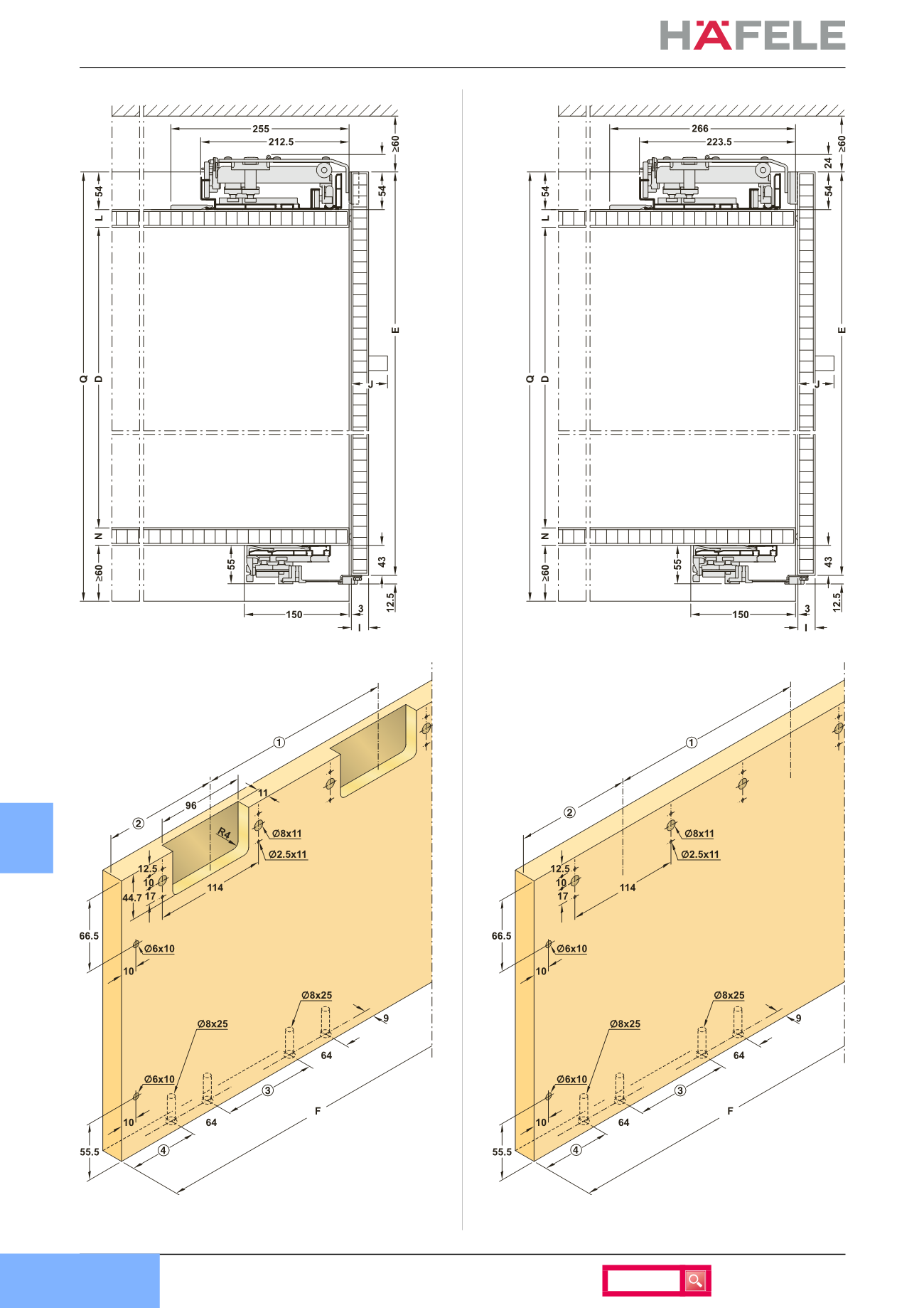
Drsna vrata, Vorfront
Drsna vrata,VorfrontLesena drsna vrataZ ravno površino – za kuhinjskeomareNa
č
rtovanje, konstrukcijaMere niso zavezujo
č
e.Pridržujemo si pravicodo konstrukcijskih sprememb.
za vrezkanje
za privijanje
Slika vrtanja za vratno krilo
24
FF
9.12
Pomo
č
pri naro
č
anju in prodaji
#W2R
1...,1070,1071,1072,1073,1074,1075,1076,1077,1078,1079 1081,1082,1083,1084,1085,1086,1087,1088,1089,1090,...1619
Powered by FlippingBook